Хлебная площадь

Таланты

Время проявлять свои таланты

 
площадь

от 44 м²

 
завершение

IV квартал 2025

 
стоимость

от 7.000.000 ₽

10 минут пешком от Тульского Кремля. Центральная локация открывает доступ к инфраструктуре и множеству значимых мест, что позволяет в полной мере насладиться преимуществами жизни в большом городе.

Все лучшее и нужное всегда рядом: современные городские пространства, популярные заведения города; дошкольные развивающие центры; образовательные учреждения для школьников и студентов; модные бутики и салоны красоты.

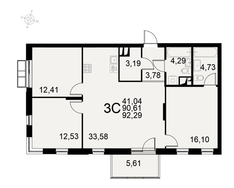
ТИПОВЫЕ ПЛАНИРОВКИ ОБЪЕКТОВ

1-комнатные

Площадь от 44 м2

от 7.000.000 ₽

2-комнатные

Площадь от 58 м2

от 10.500.000 ₽

3-комнатные

Площадь от 94 м2

от 15.500.000 ₽

4-комнатные

Площадь от 102 м2

от 16.300.000 ₽

Спецпредложение на 15 коммерческих помещений в жилом комплексе

Группа компаний "ЕДИНСТВО" предлагает приобрести помещения по спецпредложению с выгодой до 18 млн.₽ и рассрочкой с первоначальным взносом от 20% сроком до 30 марта 2026 года.

Таланты ЭТО

Жилой квартал бизнес класса на Хлебной «Таланты» несёт в себе динамику обновления, органично вписан в привычный образ жизни одного из самых исторических районов города.

Тринадцать жилых корпусов выполнены в едином стиле и расположены на общем стилобате. Вместе они формируют городской силуэт, сочетая открытость с приватностью. Стильный кирпичный фасад и широкие панорамные окна формируют изысканный архитектурный облик домов.

Внутренний двор комплекса разделен на функциональные зоны, плавно перетекающие друг в друга. По всему периметру расположены естественные насаждения, места для занятий спортом, детские площадки и лаундж-зоны.

Сохранить уютный микроклимат на территории позволяет подземный паркинг. Благодаря ему, жители могут оставить свой автомобиль в теплом охраняемом пространстве и попасть в квартиру, минуя улицу.

Сдержанные лобби и лаундж-зоны с мягкими диванами, панорамным остеклением и высокими потолками восхищают с первого взгляда. Для удобства расположены вместительные колясочные и келлеры для хранения.

Большое разнообразие планировочных решений: евроварианты с просторными кухнями-гостиными, приватные – с мастер-спальнями с ванными и гардеробными, практичные – с постирочными. Кроме этого, большое разнообразие планировочных решений с террасами.


  • Дом 1 представлен в виде пятиэтажного здания с коммерческой недвижимостью на первом этаже. На 4 жилых этажах квартиры от 45 кв.м. до 136 кв.м. На втором и пятых этажах расположен эксклюзивный выбор квартир с просторными террасами.

  • Второй дом представлен так же в виде пятиэтажного здания и с наличием коммерческих помещений на первом этаже. В доме спроектированы 4-х комнатные квартиры, которые станут уютным местом проживания для большой семьи. Планировочные решения от 46 кв.м. до 115 кв.м.

  • Третий дом – девятиэтажный, который соединен с коммерческими помещениями. Большая коллекция планировочных решений однокомнатных и двухкомнатных квартир. В единственном планировочном решении представлена квартира-студия

  • Четвертый дом состоит из 10 этажей. Расположен внутри дворовой территории квартала и предлагает будущим жителям большой выбор планировочных решений от однокомнатных до в 39 кв.м. четырехкомнатных квартир в 118 кв.м. для комфортного проживания.

  • Пятый дом самый высокий дом и состоит из 11 жилых этажей. Планировочные решения представлены от 46 до 95 квадратных метров, что дает возможность каждому подобрать желаемую квартиру. В этом доме самая наибольшая коллекция квартир с террасами.

ОНЛАЙН КОНСУЛЬТАЦИЯ

получите больше информации о проекте
и задайте свои вопросы

НЕ НАШЛИ ПОДХОДЯЩЕЕ?

Укажите параметры недвижимости, и мы подберем варианты в течение дня бесплатно

Пожалуйста, укажите телефон
Согласен на обработку персональных данных
Необходимо согласие
Написать в мессенджер